

























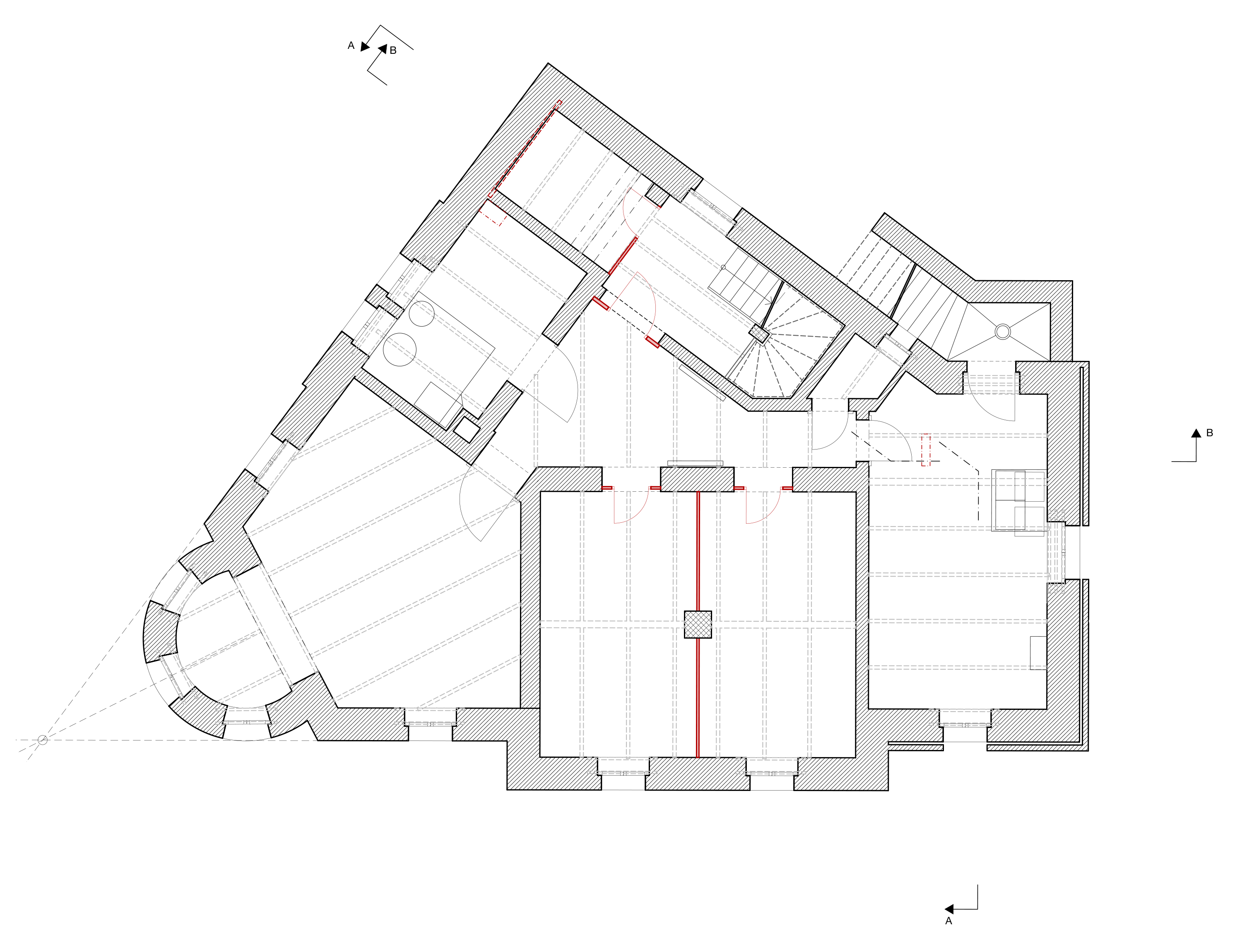
Das 1904 erbaute Wohnhaus befindet sich im Inventar der Basler Denkmalpflege und wurde in Absprache mit der Denkmalpflege saniert.
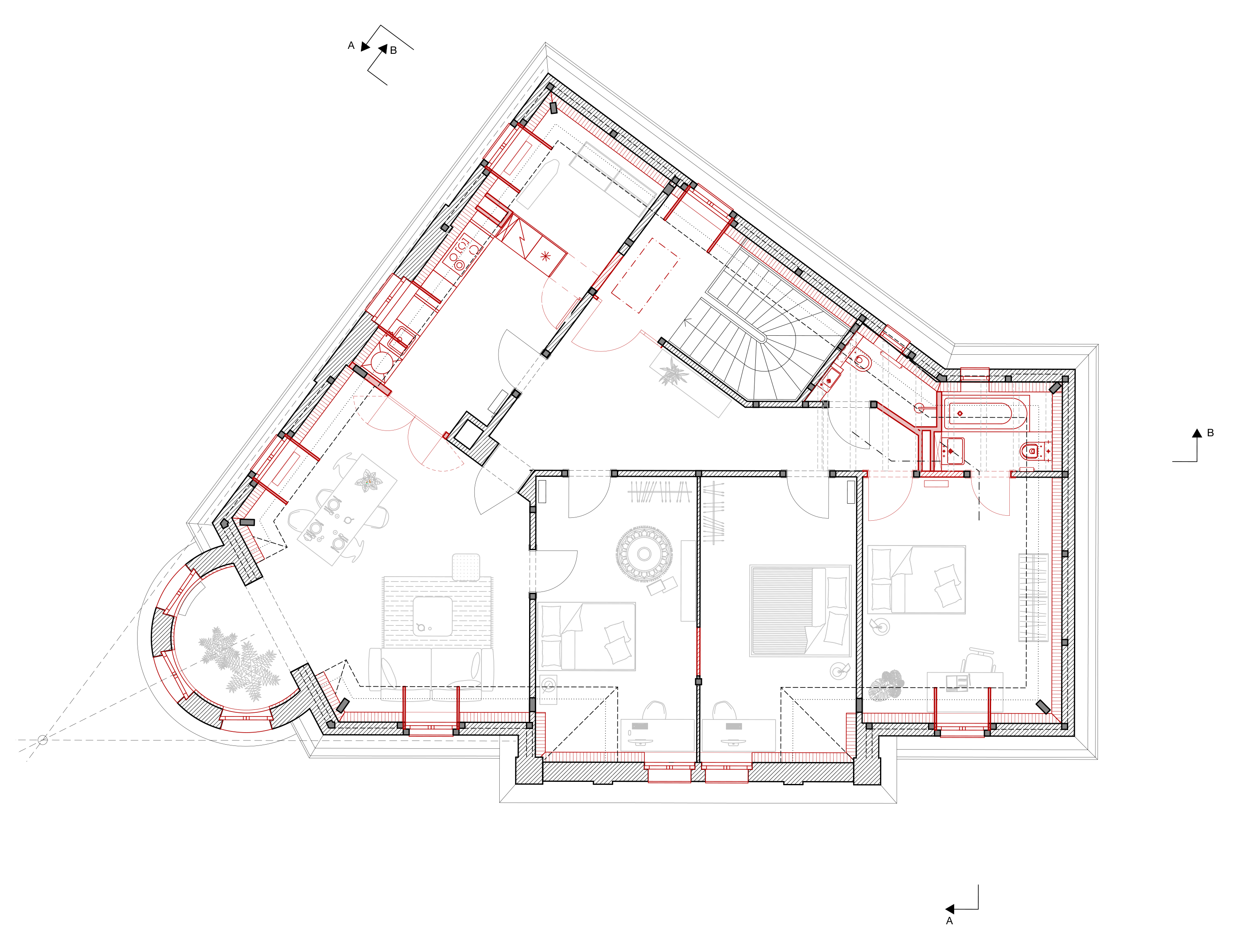
Das gesamte Dach inklusive aller Gauben wurde gedämmt und die aufwändigen Spenglerarbeiten wurden erneuert. Im Mansardengeschoss wurde eine zusätzlich Wohnung eingebaut. Die Fenster aus den siebziger Jahren wurden mit, dem historischen Charakter entsprechenden, Holzfenstern ersetzt. Der Erhalt möglichst aller historischen Bauelemente stand im Vordergrund. Wo immer möglich wurde repariert und ergänzt.
Im Inneren wurden die grossbürgerlichen Raumfolgen sorgfältig saniert. Als neues Element erhielt jede Wohnung eine grosszügige Küche, welche sich über transparente Doppelflügeltüren mit der bestehende Raumfolge verbindet. Eine besonders sorgfältige Material- und Farbwahl schaffen eine neue Grosszügigkeit in den kleinen Bädern.
Durch Planung und Bauleitung aus einer Hand konnte kostenbewusst und im vorgegebenen Zeitrahmen eine hohe bauliche und gestalterische Qualität erzielt werden.
Auftraggeberin: Stiftung Irène Bollag-Herzheimer, c/o Bank Dreyfus Söhne + Cie AG, Frau P. Schaub I 2019
Architektinnen: Kerstin Valk, Irene Diez del Coral Millaruelo, Therese Schmassmann (Bauleitung)
Bauingenieure: Gruner Lüem AG, Dirk Reinisch und Toni Waldner, Basel
Sanitärplanung: V+B Sanitärplaner GmbH, Raymond Vetter, Basel
Bauphysiker: Zimmermann + Leuthe GmbH, Moritz Zimmermann, Aetigkofen
Fotografie: Philip Heckhausen, Zürich