

























Ziel ist es, das Botnar Research Centre for Child Health (BRCCH) inhaltlich und städtebaulich als Leuchtturm in Basel, mit Nähe zum Campus der Universität und dem UKBB, zu verankern.
Das Gebäude besetzt als prägnante urbane Turmfigur die Ecke Schanzen- / Spitalstrasse. Funktional und architektonisch gliedert sich das BRCCH vertikal in drei Teile: Ein einladendes, öffentliches Foyergeschoss mit darüber liegendem Werkstattgeschoss, fünf Bürogeschosse bestehend aus vier Forschungsgruppen und der Direktion, sowie dem Dachgeschoss mit Dachterrasse. Direktions- und Dachgeschoss verzahnen sich über einen doppelgeschossigen Veranstaltungssaal zu einer panoramaartigen Raumfigur, die einen attraktiven Rahmen bildet für Veranstaltungen und internen Austausch.
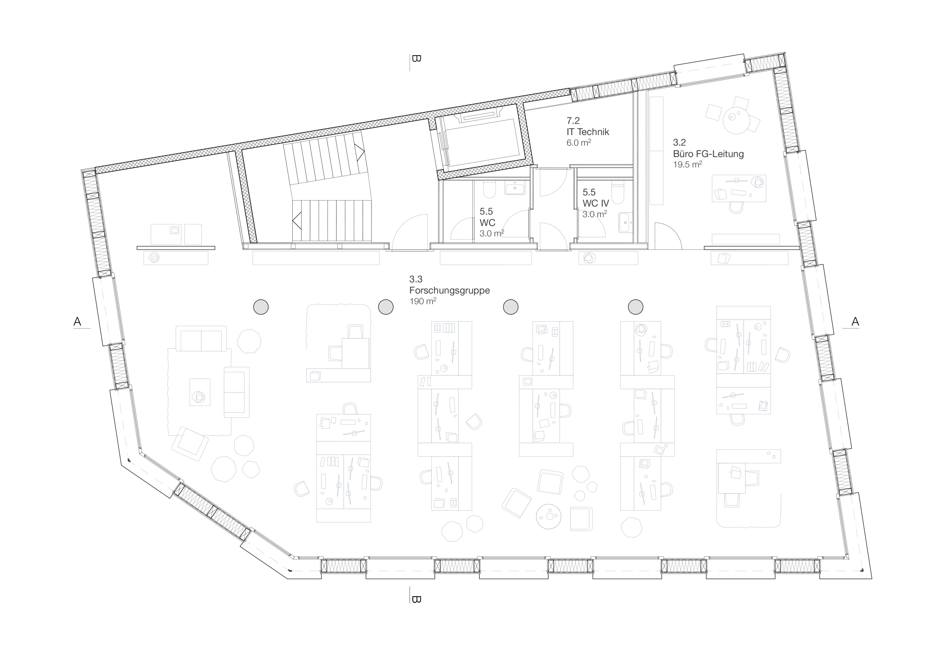
Die Bürogeschosse werden durch eine laterale Kernanordnung so gegliedert, dass auf jedem Geschoss grosszügige, von drei Seiten belichtete Büroflächen mit einem Maximum an Flexibilität für zeitgemässes, teamorientiertes Arbeiten entstehen. Struktur, Konstruktion und Materialisierung machen das BRCCH auch in Sachen Nachhaltigkeit und Raumklima zu einem Leuchtturmprojekt. Ein hoher Innovationsanspruch und ein Sinn für globale Verantwortung kommen in Form des additiven Bauens und der Materialwahl zum Ausdruck.
Das Gebäude ist als Holzbau mit einer Fassade aus Holzständern und Strohballen konzipiert. Die Anwendung der bezüglich Gebäudehöhe erprobten Ständerbauweise, gedämmt mit Strohballen, ist im Hinblick auf Brandschutz und Dauerhaftigkeit wegweisend für den Bürobau. Sichtholzdecken, Massivholzstützen und Lehmputz an den Wänden machen die ökologisch vorbildliche Bauweise sinnlich erlebbar und sorgen für ein gutes Raumklima.
Die Fassade wird durch mit Kalkputz versehene Pfeiler vertikal gegliedert. Zwischen ihnen befinden sich Holzfenster und Kastenelemente aus vorpatiniertem Holz. Der genau eingestellte Fensterflächenanteil sowie die günstige Eigenverschattung der plastischen Fassade erzeugen eine ideale Balance zwischen den Belichtungsanforderungen der Arbeitsplätze und dem Ziel, die solaren Wärmelasten zu begrenzen. Holzrollläden dienen als Sonnenschutz. So gelingt es, mit den Mitteln des nachhaltigen Bauens, ein Gebäude von städtischer Prägnanz zu formulieren.
Neubau Bürogebäude für das Botnar Research Centre for Child Health (BRCCH), Basel
Anonymer Wettbewerb: Projektwettbewerb im offenen Verfahren für Generalplanerteams I 2021
Auftraggeberin: Kanton Basel-Stadt, vertreten durch Eigentümervertretung Immobilien Basel-Stadt
Architektinnen: Kerstin Valk, Xenia Grimm, Rebecca Aldinger
Bauingenieure: Gruner Lüem AG, Jan Herzog, Oliver Walter, Basel
Sanitärplanung: HTP Gutzwiller, Natascha Gutzwiller, Niederdorf
HLK: eicher + pauli, Jochen Mühlbauer, Liestal
Elektro: HKG Engineering AG, Marc Baumgart, Pratteln
Bauphysiker, Akustiker, Nachhaltigkeit: WE, Timo Wendel, Basel
Bilder: Nora Walter Images, Zürich
Modellbau: Mathias Pfister, Muttenz